Limmerhoek 24F
1811 BA

Alkmaar

Alt
Alt
Alt
Alt
Alt
Alt
Alt
Alt
Alt
Alt
Alt
Alt
Alt
Alt
Alt
Alt
Alt
Alt
Alt
Alt
Alt
Alt
Alt
Alt
Alt
Alt
Alt
Alt
Alt
Alt
Alt
Alt
Alt
Alt
Alt
Alt
Alt
Alt
Alt
Alt
Alt
Alt
Alt
Alt
Alt
Alt
Alt
Alt
Alt
Alt
Alt
Alt
Alt
Alt
Alt
Alt
Alt
Alt
Alt
Alt
Alt
Alt
Alt
Alt
Verkocht
€ 275.000,- k.k.
2
49 m2

We hebben weer een waanzinnig appartement in de verkoop! Deze is instapklaar, gelegen in het centrum van Alkmaar en bevindt zich in een kleinschalig complex! Het appartement beschikt over energielabel A, mede dankzij de elektrische cv-ketel en zonnepanelen. In 2019 is de woning volledig verbouwd, met onder andere een nieuwe keuken, badkamer, kunststof kozijnen en er is een moderne, strakke afwerking. Bovendien is er volop daglicht in dit appartement door de lichtkoepels op het dak. Als kers op de taart beschikt dit appartement over een heerlijk dakterras op het oosten. Lijkt dit jou wat? Plan snel een bezichtiging in en wie weet word jij de nieuwe eigenaar!

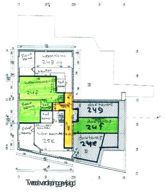
De indeling van het appartement:
Je stapt het appartement binnen in de woonkamer met open keuken. De woonkamer beschikt over kunststof kozijnen over de gehele breedte van deze ruimte. Ook zijn de muren en plafonds hier gestuukt en is er voor extra daglicht een lichtkoepel aanwezig. De moderne keuken is voorzien van een koelkast met vriesvak, een combimagnetron, 4-pits inductiekookplaat, afzuigkap en een vaatwasser. Vanuit de woonkamer is ook de slaapkamer bereikbaar die eveneens beschikt over kunststof kozijnen en een lichtkoepel. Tevens is de badkamer bereikbaar waar een inloopdouche, ligbad, wastafel met meubel en het toilet aanwezig zijn. De wasmachine aansluiting is in de berging te vinden, samen met de meterkast, mechanische ventilatie en de cv-ketel (Wesen, 2019). Via de gezamenlijke hal op deze verdieping is ook het dakterras bereikbaar. Deze is op het oosten gelegen en afgesloten met schutting delen en een poortdeur. Op de begane grond is de centrale entree, het trappenhuis en aan de buitenzijde zijn de brievenbussen. De bijbehorende berging is bereikbaar via de Zoutstraat.

De omgeving:
Het appartement is aan de rustige zijde gelegen, namelijk aan de Zoutstraat! Voor de dagelijkse boodschappen is er een recent geopende Jumbo op de Laat, maar ook is er een Spar in de buurt. De terrassen op de Platte Stenenbrug en het Waagplein zijn om de hoek gelegen. Deze karakteristieke stad kun je ook vanaf het water aanschouwen. Huur op de mooie dagen een bootje en ga op ontdekkingstocht! Uiteraard zijn de winkelstraten zo bereikt en rij je snel op de Vondelstraat richting de ringweg en de A9 richting Amsterdam.

Algemeen:
woonoppervlakte 49 m2 – gebouwgebonden buitenruimte 17 m2 (dakterras) – externe bergruimte 4 m2 – inhoud 161 m3 – bouwjaar 1996 – energielabel A – zonnepanelen voor gezamenlijk gebruik – kleinschalig complex – hartje centrum – servicekosten € 35,- per maand – voorschot energie € 127,- per maand – aanvaarding in overleg, kan desgewenst spoedig

Kenmerken

Prijs en beschikbaarheid

Status
Verkocht

Bouwvorm

Soort
Portiekflat
Kenmerk
Appartement
Open portiek
Nee

Oppervlakten en inhoud

Woonoppervlakte
49 m2
Inhoud
161 m3
Oppervlakte externe bergruimte
4 m2

Indeling

Aantal kamers
2
Aantal slaapkamers
1

Energie

Energieklasse
A
Soorten verwarming
CV ketel
Soorten warm water
CV ketel
Isolatievormen
Dakisolatie, Muurisolatie, Vloerisolatie, Dubbelglas, Volledig geïsoleerd, HR glas
CV ketel eigendom
Eigendom

Buitenruimte

Tuintypen
Geen tuin

Brochures

Download media